PENELOPE
projet_ Transformation d’une maison 3 façade à Forest
surface_ 194 m2
mission_ Esquisse, Avant- projet et Permis d’urbanisme.
période_2024
phase_ Permis d'urbanisme
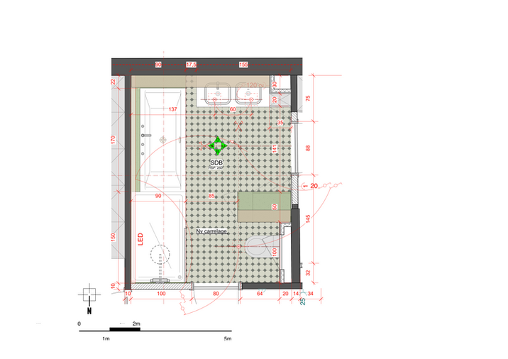
Le projet vise à rénover une maison des années 50 située avenue Pénélope, à Forest, pour améliorer son confort thermique et sa fonctionnalité. La maison est une mitoyenne de trois façades, avec un sous-sol, un rez-de-jardin, et un étage avec trois chambres. Les combles, aménagés en salle de bain, seront mieux reliés au reste de la maison grâce à un nouvel escalier contemporain. La lucarne sera modifiée pour permettre une meilleure circulation de la lumière, et un système de ventilation moderne remplacera l’ancien. La toiture sera isolée par méthode sarking pour améliorer l’efficacité énergétique. Le rez-de-jardin sera ouvert sur le jardin avec de nouvelles baies coulissantes, et les encadrements en pierre bleue seront rénovés pour conserver le caractère de la maison. Certaines modifications récentes, comme les châssis en PVC, seront régularisées, et les menuiseries extérieures seront harmonisées avec une teinte bleu foncé, complémentaire à la brique de façade.


















